
Small-scale living and caring in the heart of the city
- Care
- Public
- Completed
- Location
Leuven
- Surface
6.518 m²
- Client
ZorgLeuven
- Partners
M-gineers
- Description
New small-scale residential care complex for elderly people with dementia, providing accommodation for 72 residents, complemented by an administrative area for Zorg Leuven.
Booghuys is a new residential care center in the heart of Leuven, designed specifically for elderly people living with dementia. It combines small-scale, homelike living with high-quality care as part of a larger care campus. Strong urban integration, generous daylight, accessible outdoor spaces, and ambitious sustainability measures ensure that Booghuys offers both a warm, recognisable home and a future‑oriented, energy‑efficient environment.
Small-scale living and care in the heart of the city
The Booghuys Residential Care Center is situated in the heart of Leuven, right next to the city park. Together with the Edouard Remy Residential Care Center and the Doremietje childcare facility, it forms part of a larger care site managed by Zorg Leuven.
Booghuys is designed specifically for elderly residents with dementia. The outdated infrastructure has been replaced by a new complex providing space for 72 residents. To maintain a human scale, each unit accommodates a maximum of 9 residents. The programme also includes administrative areas for Zorg Leuven.
Masterplan Booghuys

Urban Living Designed for Elderly People with Dementia
The complex consists of three main parts:
- a street-facing section housing the administration for both Booghuys and Zorg Leuven;
- four wings within the urban block, each containing two small-scale collective housing units;
- a rooftop level accommodating the main facilities of the care centre, including a multipurpose hall, cafeteria, hairdresser, physiotherapy, and occupational therapy spaces.
On the street side, the new building integrates seamlessly into the traditional urban fabric of Vlamingenstraat. On the garden side, it opens onto a semi-public garden with mature existing trees. Multiple pathways cross the site, connecting the different parts of the care campus and making the complex easy to access and navigate for residents and visitors. In this way, Booghuys is fully integrated into the urban fabric.
Gallery corridor along the residents’ rooms. Copyright Jeroen Verrecht.

Small-scale living
In collaboration with the client, and drawing on current scientific and behavioural insights into dementia, the project adopts the concept of “small-scale living”. This allows 72 residents to live in familiar, recognisable environments on a human scale.
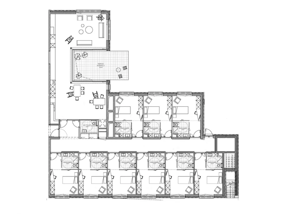
The eight homes, each designed for nine residents, are conceived as real houses, with their own front door and a living space organised around a south-facing terrace. A full-width wall of cupboards integrates the kitchen and care unit, allowing staff to be continually present at the heart of everyday life.
Ground-floor units have private gardens, while the upper levels offer generous terraces. Every resident thus maintains visual and physical contact with the surrounding park landscape.
“Drawing on current scientific and behavioural knowledge about dementia, and in collaboration with the client, we have developed a response to the specific needs of this target group: the concept of ‘small-scale living’ allows us to host 72 residents in a familiar and recognizable environment on a human scale.” Michael Seys, civil engineer–architect, partner
House plan

Terrace of a home. Copyright Jeroen Verrecht.

Living to the rhythm of the sun
Daylight plays a central role in the design. The living spaces are oriented as much as possible towards the south-east, allowing residents to wake up with the morning sun and enjoy the outdoor terraces.The layout of the rooms and the positioning of the windows are carefully designed to ensure optimal daylight throughout the day.
To avoid overheating, window sizes vary according to orientation: more compact on the south side and larger on the north. Allowing the morning sun to fall onto the bed supports the day–night rhythm, which has particular therapeutic value for older people with dementia.
Principles of siting and orientation

Wall of cupboards with carers’ desk along the patio and living areas. Copyright Jeroen Verrecht.

Caring for our environment
Booghuys contributes to the “Leuven Climate Neutral 2030” initiative and aims for a Nearly Zero Energy Building standard. A high-performance envelope with triple glazing significantly reduces energy demand. Heating and cooling are provided by a heat pump and a borehole energy storage field beneath the building, which also serves the adjacent childcare facility. Photovoltaic panels on the roofs generate additional renewable energy.
The result is a project that combines attentive, small-scale care for residents with a strong commitment to climate and environmental responsibility.











