
More housing, more open space – smart densification of an existing urban block
- Care
- Private
- Completed
- Location
Hoboken
- Surface
7.500 m²
- Client
Zorgbedrijf Antwerpen
- Partners
NU architectuuratelier, Democo (DBMF), Consilitech, Atlas-Engineering
- Description
66 assisted living units, local service centre, underground car park
Over 60 assisted living flats, a new community centre and an underground car park are being created in the heart of an existing urban block in Hoboken. The former sawmill on the site has been demolished and replaced by a compact residential project that increases density at the core and improves the connection with the surrounding neighbourhood.
Site plan
Public route with a view of the local service centre (on the left) and the assisted living units. Copyright Stijn Bollaert
Densifying the core
The result of our design approach is not only an increase in residential floor area, but also in open space. The open space between the new buildings is conceived as a “park garden”. Collective meeting spaces for residents are combined with a public passage for the neighbourhood. In this way, the project introduces a route running through the urban block, connecting the various outdoor spaces: from the cafeteria terrace beneath the colonnade to the central square and several green areas.
“Densifying an urban block with a relevant, neighbourhood-strengthening programme makes this a fascinating and challenging project.” Sinan Ciftci, project architect
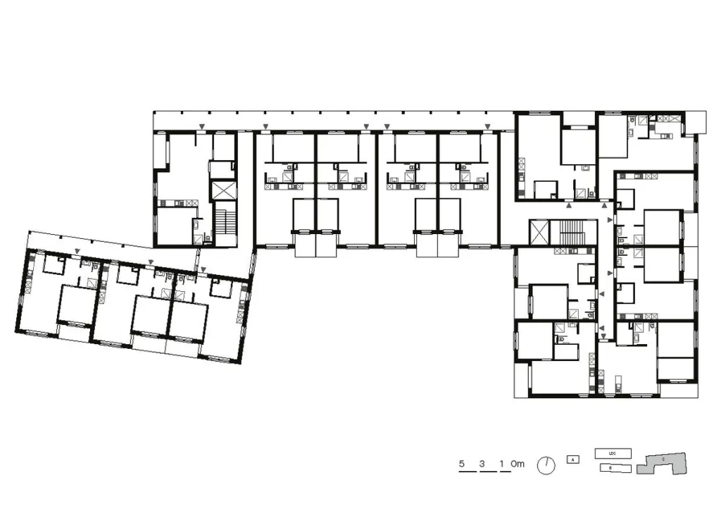
Plan of Block C with assisted living units
Cafeteria terrace beneath the colonnade with a view of the “park garden” and the assisted living units. Copyright Stijn Bollaert
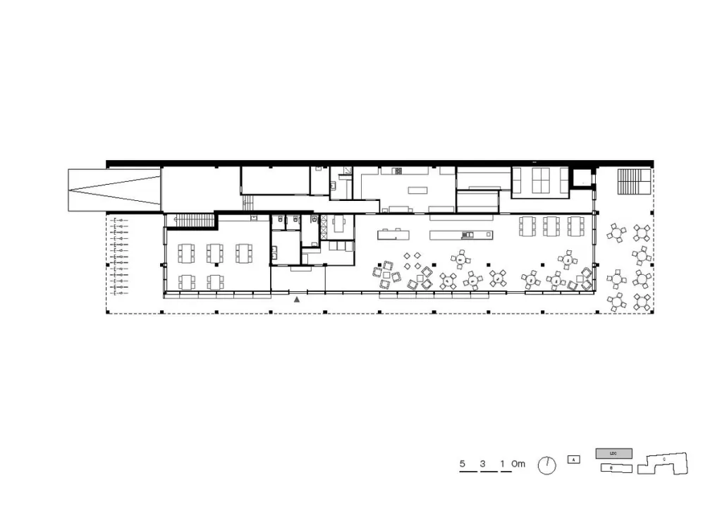
A centre for the neighbourhood
At the heart of the project lies the local service centre. This building has been deliberately positioned deeper within the block so that it occupies a central location and connects the surrounding buildings. With covered outdoor spaces, façade benches and a fully glazed ground floor, the service centre is an accessible and inviting building. The central square on the eastern side of the building can be used for collective outdoor activities. The public route running alongside the building encourages spontaneous encounters and the simple pleasure of watching people pass by.
Plan of the local service centre
Local service centre. Copyright Stijn Bollaert
Compact living
The architecture is clear-cut, using a rational structure and robust materials. In addition to the assisted living units, the project provides space for a hair salon, nail studio, laundry room, multipurpose room, underground car park and a local service centre. The dwellings are distributed across three buildings on the site. Building height is limited to a maximum of four storeys, in line with the surrounding context. Wherever possible, the assisted living units have been designed as dual-aspect apartments.
The walkways along the façades are the result of the ambition to maximise the number of dual-aspect units and to connect as much as possible with the neighbourhood. As soon as residents step outside, even briefly, they can engage with their surroundings and contribute to a sense of community.
Living in the green
In terms of materiality, the facades are finished in brickwork, combined with concrete elements such as portico structures and concrete seating elements. The parapets along the walkways and terraces are designed as a fine metal structure. In addition, supports for planting are provided at the walkways. The overall appearance of the site is green. The landscaping begins already at Oudestraat and is continued across the site in varying degrees., Apark-like landscape is created around the buildings, with walking paths in permeable paving, trees and planting that gently, and only partially, screen the dwelling terraces from the surrounding semi-public grounds. Two infiltration zones are also integrated into the landscape design.
By carefully fitting the different building volumes into their surroundings, this project succeeds in densifying in a thoughtful and sustainable way. At the same time, the quality of the outdoor spaces is enhanced and more public, accessible open space is created for residents and the wider neighbourhood.
At the same time, it enhances the quality of the outdoor spaces and creates more public, accessible open space for residents and the wider neighbourhood.
Prachtig woord, maar ik had het nog nooit gehoord. Eerder railings of guardrails?












