
Plus d’habitat, plus d’espaces ouverts – densification intelligente d’un îlot urbain existant
- Soins
- Privé
- Réalisé
- Localisation
Hoboken
- Surface
7.500 m²
- Client
Zorgbedrijf Antwerpen
- Partenaires
NU architectuuratelier, Democo (DBMF), Consilitech, Atlas-Engineering
- Description
66 résidences-services, un centre de services de proximité, parking souterrain
Plus de 60 résidences-services, un nouveau centre communautaire et un parking souterrain sont aménagés au cœur d’un îlot bâti existant à Hoboken. L’ancienne scierie du site a été démolie et remplacée par un projet résidentiel compact qui densifie le cœur de l’îlot et améliore la connexion avec le quartier.
Plan d’implantation Broydenborg
Parcours public avec vue sur le centre de services de proximité (à gauche) et sur les résidences-services. Copyright Stijn Bollaert
Densification du cœur
Le résultat de notre approche de conception se traduit non seulement par une augmentation de la surface habitable, mais aussi par une augmentation des espaces ouverts. L’espace ouvert entre les nouveaux bâtiments est conçu comme un « jardin-parc ». Les espaces de rencontre collectifs pour les résidents se combinent avec une traversée publique pour le quartier. Le projet introduit ainsi un parcours qui traverse l’îlot bâti et se connecte aux différents espaces extérieurs : de la terrasse de la cafétéria sous la galerie à colonnes jusqu’à la placette centrale et les différentes zones vertes.
« La densification d’un îlot urbain avec un programme pertinent et renforçant le quartier fait de ce projet une entreprise à la fois fascinante et stimulante. » Sinan Ciftci, architecte de projet
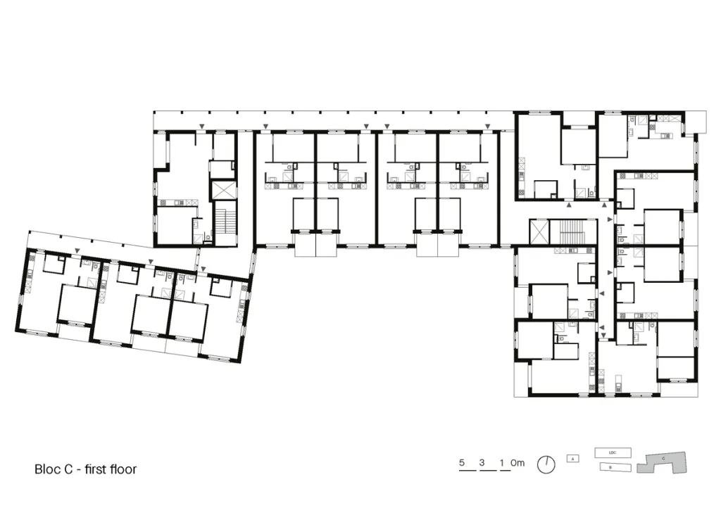
Plan du Bloc C avec résidences-services

Terrasse de la cafétéria sous la galerie à colonnes avec vue sur le « jardin-parc » et les résidences-services. Copyright Stijn Bollaert
Centre pour le quartier
Au cœur du projet se trouve le centre de services de proximité. Ce bâtiment a été volontairement implanté plus en profondeur dans l’îlot afin d’occuper une position centrale et de relier les bâtiments environnants. Avec ses espaces extérieurs couverts, ses bancs intégrés en façade et sa façade entièrement vitrée au rez-de-chaussée, le centre de services est un bâtiment accessible et accueillant. La place centrale située à l’est du bâtiment peut être utilisée pour des activités collectives en plein air. Le parcours public qui longe le bâtiment favorise les rencontres spontanées et le simple plaisir d’observer les passants.
Plan du centre de services de proximité

Centre de services de proximité. Copyright Stijn Bollaert
Habiter de manière compacte
L’architecture est sobre, avec une structure rationnelle et des matériaux robustes. Outre les résidences-services, le projet offre de l’espace pour un salon de coiffure, un studio de manucure, une buanderie, un espace polyvalent, un parking souterrain et un centre de services. Les unités de logement sont réparties sur trois bâtiments sur le site. La hauteur des bâtiments est limitée à un maximum de quatre niveaux, en continuité avec le bâti environnant. Dans la mesure du possible, les résidences-services sont conçues comme des appartements traversants.
Les passerelles le long des façades reflètent l’ambition de maximiser le nombre de logements traversants et assurent une connexion optimale avec le quartier. Quand les résidents sortent, ne serait-ce qu’un instant, ils sont en lien avec leur environnement de vie, ce qui favorise leur sentiment d’appartenir à la communauté.
Habiter dans la verdure
En termes de matérialisation, le choix se porte sur une finition de façade en maçonnerie, combinée à des éléments en béton tels que des structures de portiques et des assises en béton. Les garde-corps des passerelles et des terrasses sont réalisés en structure métallique fine et légère avec des supports pour la végétation. L’aspect général du site est verdoyant. L’aménagement paysager commence au niveau de la rue Oudestraat et se prolonge sur l’ensemble du terrain avec des intensités diverses. Autour des bâtiments, un parc, avec des sentiers piétons en revêtements perméables, des arbres et des plantations filtrent en douceur les vues sur les terrasses des logements par rapport à l’espace semi-public environnant. Deux zones d’infiltration sont également inclues dans l’aménagement paysager.
En intégrant soigneusement les différents volumes bâtis dans leur environnement, ce projet densifie l’habitat de manière réfléchie et durable. Parallèlement, la qualité des espaces extérieurs est soignée et davantage d’espaces ouverts et accessibles au public voient le jour pour les habitants et le quartier.












